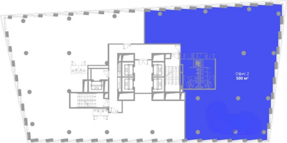
Сдается коммерческая, 500 кв.м., 5/13 эт
| Арендная плата (Помесячно) | 1 187 500 |
|---|---|
| Цена кв.м. в год | 28 500 |
| Тип коммерческой | Помещение под общепит |
| Площадь, кв.м. | 500 |
| Этаж | 5 |
| Этажность | 13 |
| Класс здания | A |
| Населенный пункт | Москва |
|---|---|
| Улица | улица Обручева |
| Номер дома | 23к2с3 |
Аренда офиса 500 м2 на 5 Этаже, в новом, концептуальном Бизнес-центре GEOLOG.
Бизнес-центр представляет собой отдельное офисное здание класса А: с просторным двухсветным лобби с панорамными окнами, бизнес-гостиной и подземной парковкой для резидентов. Расположен на Юго-Западе г. Москвы, в 7-ми минутах пешком от м. Калужская.
Архитектурная концепция здания разработана Архитектурным бюро Blank Architects. В основу идеи заключен принцип тектонических сдвигов: смещения частей здания относительно друг друга, в результате чего архитектурный облик здания визуально разделяется на две, разные по объему и площади остекления, части.
Дорогие друзья!
В бизнес-центре GEOLOG, уникальные условия на офисы от 500 м2 для наших клиентов и партнёров.
Арендные каникулы 12 месяцев!
Ремонт от застройщика.
Основные характеристики:
- Общая площадь: 17 072 м2
- Наземная площадь: 13 029 м2
- Этажность: 13 этажей (+2 подземных уровня)
- Паркинг: 88 м/м (2 уровня / подземный)
- Офисы площадью: 500 м2 13 000 м2
- Высота потолков: 3.6 м 6.0 м
- Шаг колонн: 7.5 м х 9.0 м
- Инфраструктура: бизнес-гостиная, ресторан, кофейня, мини-маркет
- Отделка: Shell&Core
Основное инженерное оборудование:
- Вентиляция: Центральная система/ Приточно-вытяжная - NED
- Кондиционирование: Центральная система/ Чиллер-Фанкойл- NED
- Лифтовое оборудование: 4 пассажирских / 1 грузовой - KLEEMANN (EU- Греция)
Транспортная доступность:
- Адресный ориентир: г. Москва, ул. Обручева, вл.23, корп.2, стр.3
- м. Калужская: 0.6 км / м. Воронцовский Парк (БКЛ): 0.8 км
- МКАД: 6.0 км
- ТТК: 7.0 км
- СК: 10.0 км
Преимущества:
- Видовые офисы с собственными террасами
- Офисы с возможностью устройства антресоли
- Офисы с высотой потолка до 6.0 м
- Независимая сервисная логистика (отдельный сервисный лифт - буферная зона разгрузки)
- Витражное остекление с открыванием окон
- Гостевой наземный паркинг
- Эффективный контур и глубина этажей
ПРИГЛАШАЕМ НА ПРОСМОТР!
Звоните!!! В нашей базе более 3000 офисных помещений по всей Москве.
Готовы подобрать именно вам, максимально комфортный офис под Ваш запрос (ТЗ).
Если потребуется дополнительная информация по какому либо объекту, сообщите мне и я оперативно Вам ее предоставлю.
Хочу отметить, что для Вас услуга по подбору помещений бесплатна.
Мы работаем со всеми коммерческими помещениями Москвы.
Все переговоры Вы будите вести непосредственно с владельцами.
Наши услуги не влияют на ставку аренды. Наша основная задача подобрать вам лучшее предложение под ваш запрос, организовать просмотр помещения, познакомить вас с собственником и довести сделку до заключения договора.
Хочу отметить, что указанные коммерческие условия являются изначально заявленными собственником. Разумный торг всегда уместен.























